●◎【これからの方】””単身者が多い福島区””野田駅徒歩7分
販売価格
1,930万円
表面利回り
4.41%
所在地
大阪府大阪市福島区鷺洲地図を見る
沿線交通
阪神本線 野田駅 徒歩7分
建物面積
㎡
土地面積
㎡
築年数
8年
建物構造
RC造
取引態様
仲介
物件ギャラリー




物件名 | 大阪府大阪市福島区 区分マンション | ||||
---|---|---|---|---|---|
所在地 | 大阪府大阪市福島区鷺洲 | ||||
沿線交通 | 阪神本線 野田駅 徒歩7分 | ||||
販売価格 | 1,930万円 | ||||
表面利回り | 4.41% | 想定年間収入 | 85万2000円 | ||
建物構造 | RC造 | 築年数 | 8年 | ||
土地権利 | 所有権 | 土地面積 | ㎡ | ||
私道負担面積 | ㎡ | 建物面積 | ㎡ | ||
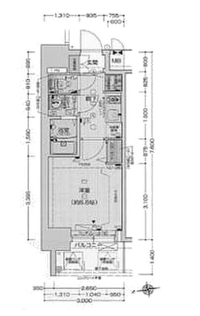
専有面積 | 22.8㎡ | 間取り | 1K | ||
階数 | 11階/12階建 | 総戸数 | |||
取引態様 | 仲介 | 現況 | 賃貸中 | ||
引き渡し可能年月 | 相談 | 情報登録日 | 2025年10月20日 | ||
次回更新予定日 (更新日) | 2026年1月20日 | 建築確認番号 |
備考
『あと一つ、収入源があれば・・・』
給与体制の不安、転職できるスキルが無い、
年金問題、将来の事よりも現状の維持で精一杯だとお考えの方
→時代に合わせた動き方で共に歩んでいきましょう。
『自分にもできるのかなあ・・・』
資産状況に自信が無く、自分にも買うことができるのか不安な方
→不動産投資はお金持ちだけの投資ではありません。
『安定した資産運用、稼げる方法を身に付けたい』
→知識を増やして投資デビューより、経験を積んで知識を増やすことがおススメ
『既に不動産を持っているけど、収支に納得がいかない』
→今更聞けない悩み、収支状況の改善など、ご相談承っております。
まずは、お気軽にご相談下さい。
~~無料のご相談、ご面談、承っております。~~
◇豊富な物件数
当社では1棟アパート、1棟マンション、収益ビル、築古戸建、区分マンション、店舗、事務所まで
幅広いジャンルの物件を扱っております。
◇ワンストップでサポート
ご購入後の管理~売却までもお任せ頂けます。
全3000戸以上の管理実績を強みに、オーナー様と二人三脚で長期安定経営を目指します。
◇幅広い金融機関
金利は1%台~3%台、お客様に合わせてご提案させて頂きます。
担当:石倉