●◎【単身者が多い北区で】””天神橋筋六丁目駅徒歩6分””
販売価格
888万円
表面利回り
7.16%
所在地
大阪府大阪市北区天神橋地図を見る
沿線交通
地下鉄谷町線 天神橋筋六丁目駅 徒歩6分
建物面積
㎡
土地面積
㎡
築年数
40年
建物構造
RC造
取引態様
仲介
物件ギャラリー
| 物件名 | 大阪府大阪市北区 区分マンション | ||||
|---|---|---|---|---|---|
| 所在地 | 大阪府大阪市北区天神橋 | ||||
| 沿線交通 | 地下鉄谷町線 天神橋筋六丁目駅 徒歩6分 | ||||
| 販売価格 | 888万円 | ||||
| 表面利回り | 7.16% | 想定年間収入 | 63万6000円 | ||
| 建物構造 | RC造 | 築年数 | 40年 | ||
| 土地権利 | 所有権 | 土地面積 | ㎡ | ||
| 私道負担面積 | ㎡ | 建物面積 | ㎡ | ||
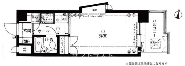
| 専有面積 | 21.03㎡ | 間取り | 1K | ||
| 階数 | 3階/7階建 | 総戸数 | |||
| 取引態様 | 仲介 | 現況 | 賃貸中 | ||
| 引き渡し可能年月 | 相談 | 情報登録日 | 2025年 11月 14日 | ||
| 次回更新予定日 (更新日) | 2026年 2月 14日 | 建築確認番号 | |||
備考
『あと一つ、収入源があれば・・・』
給与体制の不安、転職できるスキルが無い、
年金問題、将来の事よりも現状の維持で精一杯だとお考えの方
→時代に合わせた動き方で共に歩んでいきましょう。
『自分にもできるのかなあ・・・』
資産状況に自信が無く、自分にも買うことができるのか不安な方
→不動産投資はお金持ちだけの投資ではありません。
『安定した資産運用、稼げる方法を身に付けたい』
→知識を増やして投資デビューより、経験を積んで知識を増やすことがおススメ
『既に不動産を持っているけど、収支に納得がいかない』
→今更聞けない悩み、収支状況の改善など、ご相談承っております。
まずは、お気軽にご相談下さい。
~~無料のご相談、ご面談、承っております。~~
◇豊富な物件数
当社では1棟アパート、1棟マンション、収益ビル、築古戸建、区分マンション、店舗、事務所まで
幅広いジャンルの物件を扱っております。
◇ワンストップでサポート
ご購入後の管理~売却までもお任せ頂けます。
全3000戸以上の管理実績を強みに、オーナー様と二人三脚で長期安定経営を目指します。
◇幅広い金融機関
金利は1%台~3%台、お客様に合わせてご提案させて頂きます。
担当:石倉